招生考试网
学历类| 阳光高考 研 究 生 自学考试 成人高考 专 升 本 中考会考 外语类| 四 六 级 职称英语 商务英语 公共英语 日语能力
资格类| 公 务 员 报 关 员 银行从业 司法考试 导 游 证 教师资格 财会类| 会 计 证 经 济 师 会计职称 注册会计 税 务 师
工程类| 一级建造 二级建造 造 价 师 造 价 员 咨 询 师 监 理 师 医学类| 卫生资格 执业医师 执业药师 执业护士 国际护士
计算机| 等级考试 软件水平 应用能力 其它类| 书画等级 美国高考 驾 驶 员 书法等级 少儿英语 报 检 员 单 证 员 出国留学
 招生考试网 - 自学考试 - 自考真题 - 正文
全国2010年1月自考工程力学(一)试题
来源:fjzsksw.com 2010-3-17 8:48:00 【字体:小 大】

二、填空题(本大题共15小题,每小题2分,共30分)
请在每小题的空格中填上正确答案。填错、不填均无分。

11.力对物体的效应取决于力的大小、方向和___________。
12.柔索约束的约束反力通过柔索与物体的连接点,沿柔索轴线,方向___________。
13.平面汇交力系合成的结果是一个通过汇交点的合力,该合力矢量等于___________。
14.题14图所示,平行力F=-F`,作用于A、B,作用线之间距离为d,固定点O到A点的距离为a,则该二力对O点之矩的代数和为___________。
全国2010年1月高等教育自学考试工程力学(一)试题 
题14图
15.均质物体的重心与物体的重量无关,只决定于物体的___________。
16.刚体在运动过程中,若其上任意直线始终与它的初始位置保持平行,则刚体作_________。
17.题17图所示,细直杆质量为m,以角速度ω绕O点转动,则该杆的动能T=___________。
全国2010年1月高等教育自学考试工程力学(一)试题 
题17图
18.求杆件内力的基本方法是___________。
19.联接件剪切变形时,发生相对错动的截面称为___________。
20.当梁上载荷作用于梁的纵向对称面内时,梁将发生___________弯曲。
21.已知梁的挠曲线方程为v(x)=全国2010年1月高等教育自学考试工程力学(一)试题,则该梁的弯矩方程为M(x)= ___________。
22.计算细长杆临界压力的欧拉公式仅在应力不超过材料的___________时成立。
23.压杆柔度λ的计算公式为λ___________。
24.圆轴发生弯曲-扭转组合变形时,其使用第三强度理论的相当应力以应力表示为
全国2010年1月高等教育自学考试工程力学(一)试题=___________。
25.自由落体冲击动荷因数Kd=___________。

三、计算题(本大题共5小题,每小题6分,共30分)
26.杆AC、BC在C处铰接,另一端均与墙面铰接。作用在销钉C上的力F=300N,不计杆重,求AC、BC杆所受力。
全国2010年1月高等教育自学考试工程力学(一)试题
题26图
27.直杆OA绕O轴转动,某瞬时A点的加速度值a=全国2010年1月高等教育自学考试工程力学(一)试题m/s2,且知其方向与OA杆的夹角
θ=60°,OA杆长lm,求该瞬时杆的角加速度α。
全国2010年1月高等教育自学考试工程力学(一)试题 
题27图
28.一转动轴,已知输入功率P=1.85kW,轴的转速n=32.6r/min。若轴的许用应力[τ]=40MPa,试设计轴的直径。
29.作如题29图所示梁的内力图。
全国2010年1月高等教育自学考试工程力学(一)试题 
题29图
30.如题30图所示,正方形截面简支梁,长l=4m,中点作用集中力F=3kN。若材料的许用应力[全国2010年1月高等教育自学考试工程力学(一)试题]=10MPa,试确定截面尺寸a。
全国2010年1月高等教育自学考试工程力学(一)试题 
题30图

四、综合应用题(本大题共2小题,每小题10分,共20分)
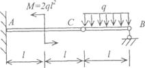
31.组合梁的支承和载荷如题31图所示。已知力偶矩M=2q12,均布载荷q,尺寸如题31图。
求A、B两处的约束反力。
全国2010年1月高等教育自学考试工程力学(一)试题 
题31图
32.如题32图所示,矩形截面杆受偏心拉伸。用应变片测得其上、下表面的轴向线应变分别为全国2010年1月高等教育自学考试工程力学(一)试题=0.62×10-3,全国2010年1月高等教育自学考试工程力学(一)试题=0.18×10-3,材料的E=200GPa。试求F力的大小。
全国2010年1月高等教育自学考试工程力学(一)试题
题32图

网站版权与免责声明
①由于各方面情况的不断调整与变化,本网所提供的相关信息请以权威部门公布的正式信息为准.
②本网转载的文/图等稿件出于非商业性目的,如转载稿涉及版权等问题,请在两周内来电联系.